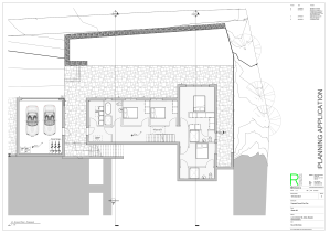
The plot has existing planning permission for a large contemporary home (approx 250sq meters), and after much consideration we’ve decided that although we do like the current plans (21/01742/FUL), that we would be missing an opportunity to build something specific for us if we just tweaked the plans and we’d always probably feel that we’d compromised. Not only that, with a direct relationship between cost (continuing to increase) and size (sq meter) then the current plans will end up too expensive.







So we have decided to start from scratch and clear our minds of these plans and assume that we’ve got a blank canvas …
Leave a comment